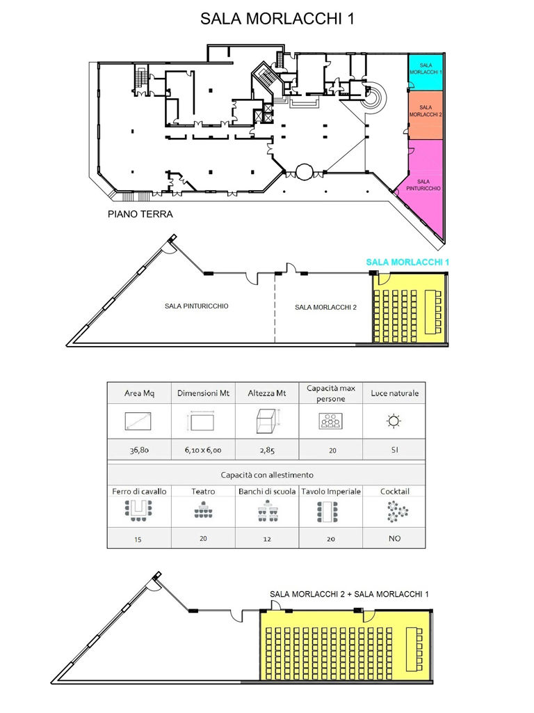
Morlacchi 1 Meeting Room

Area
36,80 m²
Capacity
30 MAX

Ideal for small meetings, meetings, job interviews and training courses. It is located on the ground floor and can accommodate up to 20 people theater style. It can be combined with Sala Morlacchi 2.

Morlacchi 1 Meeting Room 2
Arrangement
15
20
12
20
NO
Morlacchi 1 Meeting Room 3
Services

President's table:

  • max. 6 seats
  • table and stand microphones


Audio diffusion:

  • global with fixed wall speakers


Amplifier:

  • power 50 watts
  • table and free-standing microphones
  • centralised control panel


Electrical system:

  • 3 25A sockets
  • 3 15A sockets
  • indirect diffused and reflected light lighting
  • telephone-TV socket
     

Other equipment:

  • air conditioning,
  • sliding curtain darkening system
Morlacchi 1 Meeting Room 4
Book