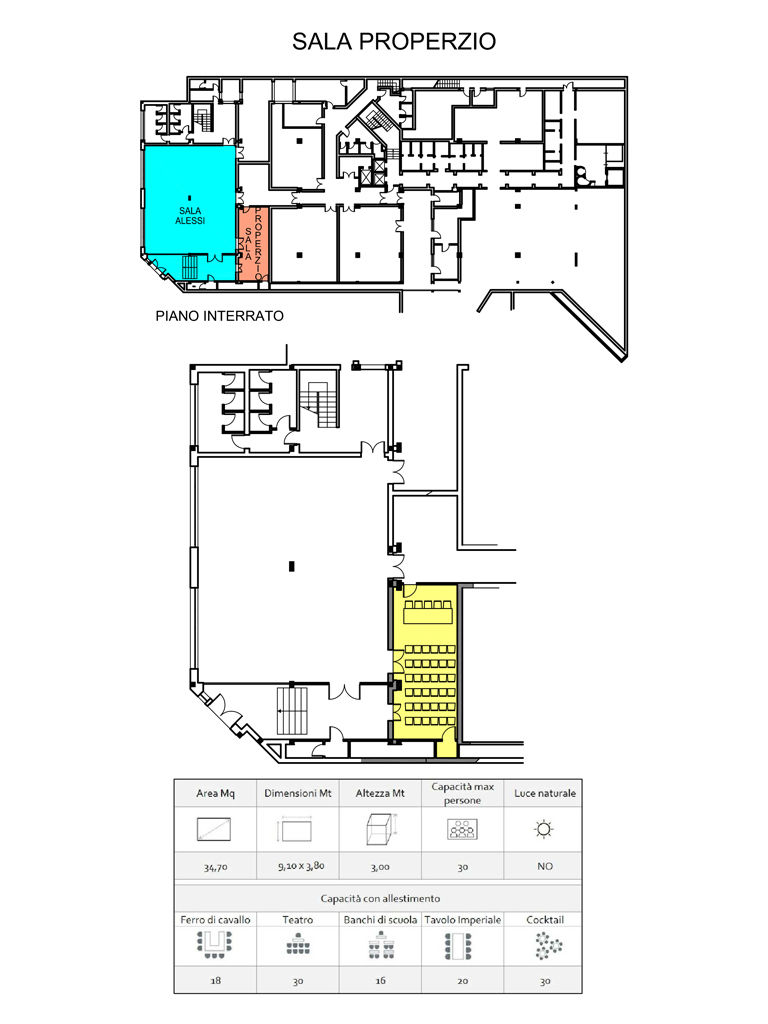
Sala Properzio

Area
34,70 m²
Capacità
30 MAX

Situata al piano interrato ed adiacente alla sala Alessi, può essere ideale per meeting e riunioni fino a 35 persone a teatro o da supporto alla sala plenaria.

Sala Properzio 3
Disposizione
18
30
16
20
30
Sala Properzio 4
Servizi

Tavolo di Presidenza:

  • max 5 posti.
     

Impianto elettrico:

  • interruttori luce,
  • 3 prese da 25 A,
  • 3 prese da 15 A.
  • Portata dell'impianto elettrico: 3 kwatt.
     

Altre dotazioni:

  • telefono,
  • presa TV,
  • sistema di oscuramento a tende scorrevoli,
  • aria condizionata.
Sala Properzio 5
Prenota