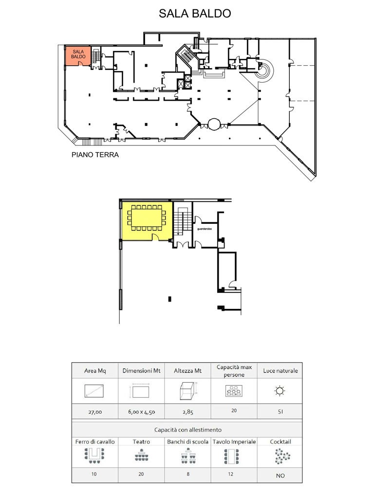
Sala Baldo

Area
27 m²
Capacità
20 MAX

Situata a piano terra, è ideale sia per piccoli meeting che per pranzi di lavoro riservati con capienza fino a 20 persone.

Sala Baldo 2
Disposizione
10
20
8
12
NO
Sala Baldo 3
Servizi

Tavolo di Presidenza:

  • max 6 posti
     

Impianto elettrico:

  • centralina generale
  • interruttori generali
  • 4 prese da 25 A
  • 3 prese da 15 A
  • telefono
  • presa TV
  • Portata dell'impianto elettrico: 4 kwatt
     

Altre dotazioni:

  • aria condizionata
Sala Baldo 4
Prenota